Apartment for sale Selargius (CA) - Centro
Rif.cell.3897637913 | € 300.000
Description
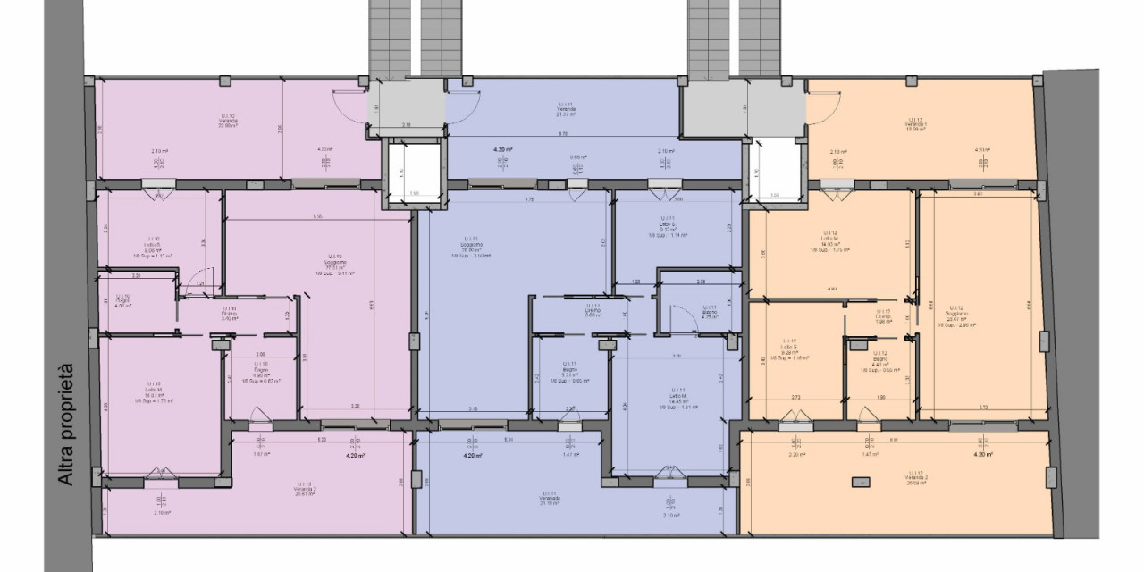
Selargius, in una zona residenziale e ben servita proponiamo in vendita trivani panoramici di nuova costruzione ( a partire da 300.000 €), situati in una modernissima palazzina dotata di 2 ascensori.
Gli appartamenti proposti, attualmente in fase di ultimazione, sono così composti:
- Ampia zona giorno con cucina open space, camera matrimoniale, camera singola, doppio bagno e due terrazze a livello.
Dotati di: posto auto, impianto fotovoltaico, impianto di climatizzazione con split inverter in ogni ambiente, produzione acqua sanitaria con boiler a pompa di calore, sistemi di smaltimento e recupero delle acque meteoriche e reflue.
Classe energetica A4.
CONSEGNA: LUGLIO 2026.
Details
| Price: | € 300.000 |
| Energy efficiency: |
I.P.E. in fase di definizione |
| Municipality: | Selargius |
| Insertion date: | |
| Last edit date: |




